Back to: Seed Production Pathways to Scale
Now, let’s dive into the details of our grow tanks, a critical component of our kelp nursery. We’ll explore their design and the various elements that make them ideal for our kelp cultivation process.
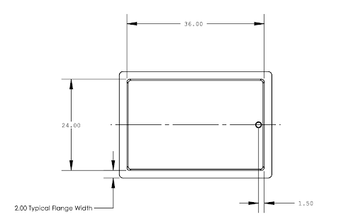
Our grow tanks are specially designed fiberglass reinforced tanks with a capacity of 67 gallons. Their interior dimensions are 36”W x24”L and 18” deep. Additionally, each tank has a 2-inch rim on all edges, making the overall dimensions 38”W x26”L. The tanks are coated with a pure white gel coat to ensure that any light entering the tank is effectively reflected. A 1” thread x thread fitting was cast into the bottom of the tank for the standpipe connection, centered on the 24”L wall of the tank.



Within each tank, we house 24 seed spools, each with a 4-inch diameter and wound with 1mm seed string, yielding 400 feet of seed material.

Click on the number icons below to learn more about how we accounted for circulation.
Each grow tank is connected to an individual air pump. A .5 micron filter is attached to the pump’s inlet, while an airstone is connected to flexible tubing via the pump’s outlet. A control valve is installed inline to regulate the flow of air to the airstone.

For our spool stand, we’ve used a sheet of ⅛-inch white acrylic. We’ve carefully cut out holes in this sheet to hold our spools, making sure they are evenly spaced just 1 inch apart. We used a hole saw and a drill press for this task. Additionally, we’ve created a special hole for the standpipe drain, which helps maintain water levels in our tanks. To ensure everything fits perfectly, we’ve spaced the two spools closest to the drain an extra ¼ inch apart to accommodate the drain fitting. And to make sure the acrylic sheet sits flat on the tank bottom without any issues related to the tank’s curvature, we’ve cut the corners at a 45-degree angle.

Our tanks are supported by medium-duty warehouse racking, capable of withstanding up to 1,800 pounds, approximately three times the weight of a filled grow tank.

The uprights were cut in half with a metal cut off saw with the top shelf set 6” below the top of the upright, resulting in the grow tank being captured by the uprights for stability. A section of the wire rack shelf has been removed with a grinder to allow the drain of the grow tank to connect to the waste system.

Grow tank drains are connected to 1-inch valves, enabling individual tank isolation during cleaning. These valves are linked to a 2-inch waste circuit that runs centrally along rows of tank stands and the container’s perimeter. The waste circuit includes a standpipe for condensate waste from the air handler and a 3-inch open drain for incidental water disposal.
As our system lacks access to a gravity drain, wastewater is collected in a 55-gallon drum. An Eheim pump, controlled by a sump pump waste switch, removes water from the drum to an overhead waste line leading to a drain. This setup allows us to closely monitor water consumption, ensuring it doesn’t exceed our water capacity.